
当前位置:
衣柜网>
衣柜新闻>
行业热点>
详情
手机版最新留言:
使用手机微信“扫一扫”功能,扫描以下二维码,即可将本文分享到“朋友圈”中。
2024-06-27 编辑:中国衣柜网 来源:网络 浏览数:6141
好莱客 | 对空间的要求、审美理念也在悄无声息地改变。年轻人更加注重场景的个性表达、情感体验和审美价值。
探店专题
商场:江西万载好莱客艺术整装
面积:205㎡
地点:江西 万载
展示空间:好莱客艺术整装展示区(橱柜、客厅、餐厅、门厅、卧房、衣帽间、书房、酒柜、儿童房、阳台柜)、设计区、选材区、木门区
上样系列:曙光星城Ⅱ、米洛斯、卡酪、绯云间、拾光简影Ⅱ、暮光森林、浮光流影、芳华、都市新语、头号玩家
设计团队:展示设计师陈胜利、样柜设计师招祥钧、软装设计师孟娜
随着85后、90后接管了“家”的话语权,对空间的要求、审美理念也在悄无声息地改变。年轻人更加注重场景的个性表达、情感体验和审美价值。
如何才能拥有理想家?如何搭配才更有品位?江西万载好莱客艺术整装,等你去解锁家的理想模样~
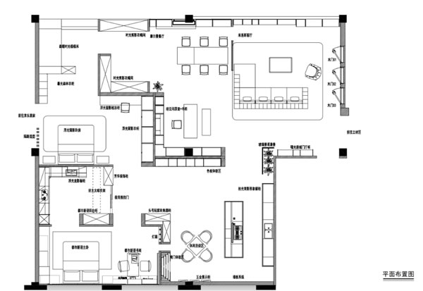
▲平面展示
江西万载好莱客艺术整装,设计动线上配合空间结构将当下流行和传统习惯融合在一起,形成一个舒适有温度的展厅空间。
01以艺术触笔,打造轻奢新体验
设计灵感源于艺术生活本质的美,透过空间,窥见极简生活美学,以“轻奢”为设计基调,融入现代美学,让新产品、新形象跃然于展厅之中。
将厨房做成了开放式的多功能厨房,包含备餐、吧台、厨房功能,使得有限的面积里视觉感观达到最大化。
▲拾光简影Ⅱ套系
▲头号玩家套系
▲暮光森林套系
02大平层设计,尽显高级范
在仅仅200多平方米的专区上展开了大平层的布局设计,大开间的公共区域在功能设置上具有更大的灵活性,满足更多的展示需求。
在展厅入口处,没有做过多的景观过渡,而是用入户门厅,客餐厅等直接入手,合理利用有限的空间做功能展示区域,也符合专区的情景需求。
▲米洛斯套系
抽象珠光+深色柜体+中国红,简单的平板门造型,极简的配色美学,是传承中式极简美学的体现。
▲绯云间套系
封闭的细绒晶沙灰掩门设计,具有超强的收纳空间和密闭性,奶油色调碰上灰色的玻璃门板,使餐厅空间更显温柔惬意。
▲卡酪套系
北欧木纹+印灰石的纹理碰撞平静简洁的白色,诠释产品沉稳又灵动的工业风基调,展现沉稳又充满个性的生活态度。
▲浮光流影套系
面板使用莱恩幻橡花色,将金属/玻璃/石纹/高光板的质感与家居完美搭配,让轻奢极简的产品格调,更加完整的呈现。
▲拾光简影Ⅱ套系
▲曙光星城Ⅱ套系
合理利用有限的空间做功能展示区域,也符合专区的场景需求。
▲都市新语套系
▲选材区
03高颜百搭,主推空间
白色、灰色为主色调,精致细腻的斜格纹理,似布纹亦如砂岩纹;远看是纯粹的白色高光门板,近看纹理清晰精致。
▲米洛斯套系
云灰木纹柜身搭配月影白门板,打造简约高级感空间。深空灰封边拉手,金属线条感让门板更显简约流畅。
▲浮光流影套系
掩门、玻璃门和开放柜的结合,使衣帽间更具层次感。收纳五金的运用,不仅增加了产品的功能性还提高了产品的档次。
▲都市新语套系
江西万载好莱客艺术整装店,设计以匠心产品为载体,以艺术展示为触笔,用设计演奏出美好生活的乐章。
(图文来源:好莱客艺术整装大家居公众号,侵删)
想了解这个项目,请联系我!
我想加盟,请将项目的资料发给我。
请问我所在地区有加盟商了吗?
想了解此项目的加盟流程,请联系我!
请问加盟此项目需投资多少钱?
版权与免责声明:
凡未注明稿件来源的内容均为转稿或由企业用户注册发布,本网转载出于传递更多信息的目的,如转稿涉及版权问题,请作者联系我们处理。我们对页面中展示内容的真实性、准确性和合法性均不承担任何法律责任。
如内容信息对您产生影响,请及时联系我们修改或删除。
15811192007
今天已经有 230 人获取加盟资料
激发新活力,释放新动能,大咖齐聚,闪耀门展-2023中国国际门业展览会(北京门展),中国木门网、中居联高端访谈栏目专访鑫雅迪负离子木门营销总监刘志峰。
激发新活力,释放新动能,大咖齐聚,闪耀门展-2023中国国际门业展览会(北京门展),中国木门网、中居联高端访谈栏目专访洋诚智慧木门总经理王智。
激发新活力,释放新动能,大咖齐聚,闪耀门展-2023中国国际门业展览会(北京门展),中国木门网、中居联高端访谈栏目专访戴克爱家高定刘杰。
激发新活力,释放新动能,大咖齐聚,闪耀门展-2023中国国际门业展览会(北京门展),中国木门网、中居联高端访谈栏目专访品桥木门总经理隗治洪
激发新活力,释放新动能,大咖齐聚,闪耀门展-2023中国国际门业展览会(北京门展),中国木门网、中居联高端访谈栏目专访兄弟木门营销总经理鲍壮。
2024门业及定制家居品牌峰会暨中居联杯·2023年度木门及门墙柜整装十大品牌表彰盛典圆满落幕
5月10日,“蝶变·未来 全新智能家居发布会”柏丽嘉全屋智能定制家居经销商会在成都香迪大酒店盛大开启。
让加盟更诚信 让选择更放心
立即咨询做有权威的品牌