
当前位置:
衣柜网>
衣柜新闻>
行业热点>
详情
手机版最新留言:
使用手机微信“扫一扫”功能,扫描以下二维码,即可将本文分享到“朋友圈”中。
2024-06-27 编辑:中国衣柜网 来源:网络 浏览数:6187
今天德瑞邦全屋定制分享的是一套172㎡的现代风格设计案例,设计以明净、清新的素雅色调,配合现代的设计手法,成就了这个和谐舒适的理想家居。
以木纹+石纹的搭配提升整个空间的品质感,体现轻奢的空间感受。德瑞邦全屋定制依然用德瑞邦5大空间+1大配套系统的脉络为您解析,希望这套装修案例能给准备装修的小伙伴们带来一些新的灵感~
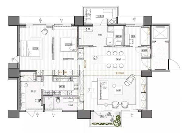
平面布置图
1 厅房空间
玄关
客厅
极致简约的客厅空间,无过多的装饰,胡桃木褐、白色搭配的整体电视柜,收纳功能强大的通顶书柜,可随手置物、盆栽,也可随便放置装饰品点缀,不仅满足了实用性还保证了美观的效果。
格栅的使用让整体电视柜的设计更加精致。
利用沙发与书柜的间隔,摆上小书桌就是一方舒适的阅读区。
2 餐房空间
客餐一体化设计,相连的空间让视觉效果更显开阔大气,也更具有融通性。
3 卧房空间
主卧
在主卧廊道细节之处装点夜灯的设定,让过道的气氛产生变化,形成物境–意境–心境的转变,大大增进日常生活的仪式感。
主卧衣帽间
更衣间使用饱和度高的爱马仕橙木饰面作为主题,视觉上色彩的强度对比,更衣空间释放了个人风格,传达了眼光和对于自我的喜爱。
4 配套系统
以上就是整个家的部分装修实景图了。好的装修,来自于我们对于生活品质的追求,对生活的热爱,对家人的关爱。今天的装修案例,触动你了吗?
(图文来源:德瑞邦全屋定制公众号,侵删)
想了解这个项目,请联系我!
我想加盟,请将项目的资料发给我。
请问我所在地区有加盟商了吗?
想了解此项目的加盟流程,请联系我!
请问加盟此项目需投资多少钱?
版权与免责声明:
凡未注明稿件来源的内容均为转稿或由企业用户注册发布,本网转载出于传递更多信息的目的,如转稿涉及版权问题,请作者联系我们处理。我们对页面中展示内容的真实性、准确性和合法性均不承担任何法律责任。
如内容信息对您产生影响,请及时联系我们修改或删除。
15811192007
今天已经有 230 人获取加盟资料
激发新活力,释放新动能,大咖齐聚,闪耀门展-2023中国国际门业展览会(北京门展),中国木门网、中居联高端访谈栏目专访鑫雅迪负离子木门营销总监刘志峰。
激发新活力,释放新动能,大咖齐聚,闪耀门展-2023中国国际门业展览会(北京门展),中国木门网、中居联高端访谈栏目专访洋诚智慧木门总经理王智。
激发新活力,释放新动能,大咖齐聚,闪耀门展-2023中国国际门业展览会(北京门展),中国木门网、中居联高端访谈栏目专访戴克爱家高定刘杰。
激发新活力,释放新动能,大咖齐聚,闪耀门展-2023中国国际门业展览会(北京门展),中国木门网、中居联高端访谈栏目专访品桥木门总经理隗治洪
激发新活力,释放新动能,大咖齐聚,闪耀门展-2023中国国际门业展览会(北京门展),中国木门网、中居联高端访谈栏目专访兄弟木门营销总经理鲍壮。
2024门业及定制家居品牌峰会暨中居联杯·2023年度木门及门墙柜整装十大品牌表彰盛典圆满落幕
5月10日,“蝶变·未来 全新智能家居发布会”柏丽嘉全屋智能定制家居经销商会在成都香迪大酒店盛大开启。
让加盟更诚信 让选择更放心
立即咨询做有权威的品牌