
当前位置:
衣柜网>
衣柜新闻>
行业热点>
详情
手机版最新留言:
使用手机微信“扫一扫”功能,扫描以下二维码,即可将本文分享到“朋友圈”中。
2024-06-27 编辑:中国衣柜网 来源:网络 浏览数:6146
这是一套建筑面积126平米的后现代风三居室案例,让这个家给人一种时尚大气而又优雅浪漫的感觉,营造出了惬意、轻奢的居住氛围。
这是一套建筑面积126平米的后现代风三居室案例,设计师以灰色调为主,加入了大理石和金属元素,还增加了一抹粉色作为点缀,让这个家给人一种时尚大气而又优雅浪漫的感觉,营造出了惬意、轻奢的居住氛围。
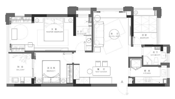
平面布置图
设计师在入户门的侧方做了嵌入式的鞋柜,而靠近餐厅一侧的墙面做上了大面积的穿衣镜,灰色调的墙地面带来了年轻大方的感觉。
餐厅是选择了卡座式的设计,从卡座延伸出到顶的柜子到次卧的墙面,让餐厅拥有足够的储物空间。皮质椅子和黑色的餐桌看起来很有格调感。
位于餐厅侧方的是客厅空间,客厅同样是选择了以灰色调为主,在背景墙和软装上加入一抹浪漫的粉色,让整个客厅变得更为优雅。
厨房内部是做了L形的橱柜布局方案,白色的墙砖和灰色的地砖搭配乳白色的橱柜,让厨房看起来更有层次感又不显杂乱。
主卧室的床头靠背加上了背光的设计,顶部的主灯被舍弃,用嵌入式的筒灯代替,让人感觉更为简洁。卧室外的阳台包进卧室内,这样看起来也宽敞了不少。
主卫的洗手台是放在了卫生间的门外,地面的创意地砖可以延伸空间视觉感。淋浴房内做上壁龛来辅助收纳,使用起来更加方便。
次卧的设计非常简单,灰色调的背景墙和灰色调的软装结合,不同层次的灰色让卧室不会那么单调,简约年轻的感觉也很适合孩子居住。
次卧同样做了干湿分离的设计,把淋浴房放在了转角的位置,弧形的淋浴房安全性会更高一些,通铺大理石瓷砖看起来也非常简洁大方。纽莱福定制家具,专注于实现人们对家的美好想象。为您创造更多生活美好的可能!
(图文来源:纽莱福定制家具公众号,侵删)
想了解这个项目,请联系我!
我想加盟,请将项目的资料发给我。
请问我所在地区有加盟商了吗?
想了解此项目的加盟流程,请联系我!
请问加盟此项目需投资多少钱?
版权与免责声明:
凡未注明稿件来源的内容均为转稿或由企业用户注册发布,本网转载出于传递更多信息的目的,如转稿涉及版权问题,请作者联系我们处理。我们对页面中展示内容的真实性、准确性和合法性均不承担任何法律责任。
如内容信息对您产生影响,请及时联系我们修改或删除。
15811192007
今天已经有 230 人获取加盟资料
激发新活力,释放新动能,大咖齐聚,闪耀门展-2023中国国际门业展览会(北京门展),中国木门网、中居联高端访谈栏目专访鑫雅迪负离子木门营销总监刘志峰。
激发新活力,释放新动能,大咖齐聚,闪耀门展-2023中国国际门业展览会(北京门展),中国木门网、中居联高端访谈栏目专访洋诚智慧木门总经理王智。
激发新活力,释放新动能,大咖齐聚,闪耀门展-2023中国国际门业展览会(北京门展),中国木门网、中居联高端访谈栏目专访戴克爱家高定刘杰。
激发新活力,释放新动能,大咖齐聚,闪耀门展-2023中国国际门业展览会(北京门展),中国木门网、中居联高端访谈栏目专访品桥木门总经理隗治洪
激发新活力,释放新动能,大咖齐聚,闪耀门展-2023中国国际门业展览会(北京门展),中国木门网、中居联高端访谈栏目专访兄弟木门营销总经理鲍壮。
2024门业及定制家居品牌峰会暨中居联杯·2023年度木门及门墙柜整装十大品牌表彰盛典圆满落幕
5月10日,“蝶变·未来 全新智能家居发布会”柏丽嘉全屋智能定制家居经销商会在成都香迪大酒店盛大开启。
让加盟更诚信 让选择更放心
立即咨询做有权威的品牌