
当前位置:
衣柜网>
衣柜新闻>
行业热点>
详情
手机版最新留言:
使用手机微信“扫一扫”功能,扫描以下二维码,即可将本文分享到“朋友圈”中。
2024-06-27 编辑:中国衣柜网 来源:网络 浏览数:6171
通过家居场景的复刻,让客户获得接近理想生活空间的沉浸式体验。
品牌介绍
沃格全屋定制创立于2008年,是广东沃格智能家居有限公司旗下的全屋生态定制家居品牌,集产品研发、设计、生产、销售、服务于一体,由著名影视明星“左小青”倾情代言。
产品理念
沃格全屋定制坚持以客户为中心,致力于为消费者提供高品质、个性化、智能化的家居定制服务。
项目说明
项目简介:云南曲靖店
项目名称:沃格全屋定制展厅
项目地址:云南曲靖
主应用产品:现代系列、网红系列、睿格系列
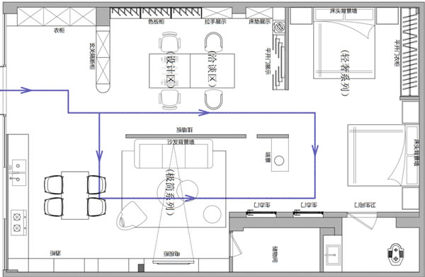
空间布局
设计解析
项目位于云南曲靖,店铺面积95平米。展厅以现代风格产品为主,涵盖木门、门墙柜一体、成品配套。通过家居场景的复刻,让客户获得接近理想生活空间的沉浸式体验。
沃格全屋定制展厅
云南 · 曲靖
1、门 口 空间
展厅视野开阔,从店门口进入
迎接观者的就是开放式的多元空间展示
设计师依据场地合理分配展示区域
以最短动线串联空间,引导视线
2、入口 玄 关 柜
△入口现代系列衣柜、玄关柜:北欧橡木柜体搭配简白PET门板+石晶板台面
镂空展示格和玻璃搭配玄关柜
既起到了隔断作用,又能满足收纳需求
让进门视觉更宽敞,同时让光线更加通透
错落有致的展示也让玄关更富有层次感
3、衣 柜
衣帽间拥有足够收纳的空间又不失美感
可悬挂的衣架与储物柜结合更显质感和品位
深色铝框玻璃避免了视觉凌乱,搭配感应灯带
所有衣物隐约呈现,既显得整洁干净
也减少了盲目翻找的不便
4、客厅空 间
△沙发背景墙:拿铁橡木(半透)+烟熏胡桃格栅
烟熏胡桃格栅搭配拿铁橡木装饰沙发背景墙
线条干净利落,高奢大气的空间氛围层层递进
高密度回弹海绵座包的杏色沙发,舒适优雅
消减了冷硬感,让整体空间不显压抑
△客厅电视柜/酒柜:丁香木/素蓝/勒维斯石+闪银灰UV门板/P211哑黑铝框玻璃门
电视柜+酒柜的配置藏露兼备
门墙柜一体化设计,整体风格统一
哑黑铝框玻璃酒柜流光溢彩,高级上档次
5、客 餐厅
一体化的客餐厅相互借用空间
减少压迫感与拥挤感,获得更好的视觉效果
整体区域在光线上和空间上都更加通透且开阔
全面提升家中的生活品位
6、橱 柜
△橱柜、地柜:灰布纹防潮板+银线木UV门板/ 高柜:闪银灰UV门板+P211哑黑铝框玻璃门+淡雅橡多层板(衬托酒柜颜色)
一字型橱柜,设计简洁大气
洗、切、备、炒、装,操作动线便捷
橱柜+地柜的设计不仅方便收纳、展示
还能美化餐厅环境,提高空间格调
7、主 卧空 间
△衣柜:烟熏胡桃柜体+雅克胡桃(水漆)门板(高定水漆门板);背景墙:烟熏胡桃+杏仁黄+勒维斯石
通过巧妙布局,使主、次卧相对独立
保证整体空间的美观性与功能性共存
主卧温馨舒适的布置,自然流露出轻奢质感
定制到顶式衣柜,合理收纳衣物、被褥
床品与墙面颜色相搭配,营造出更加和谐的氛围
8、次 卧
△背景墙:玛雅灰格栅+肤感藕白PET墙板;梳妆台:玛雅灰柜体+奶油皮纹抽面
肤感藕白墙板、玛雅灰格栅和奶白床品的搭配
呈现出次卧温润、柔和的空间质感
梳妆台和床头柜,因地制宜的对称设计
满足了卧室空间的功能性和舒适度
9、木 门 展 示
方寸之间,开启理想生活空间
木门的肌理质感透出轻奢内核
赋予观者对材质、触感、纹路的细腻感知
引发、强化观者对家居的美好想象
10、设计洽谈
△设计区:灰布纹柜体+淡雅橡设计桌
板材展示区大小门板排列设计
打破单一格局划分,艺术与秩序并存
无论是花色丰富的板材,还是各式各样的木门
都直观地展现出产品的出色品质
展厅推介
沃格全屋定制-云南曲靖展厅
展厅的场景设计与家居生活空间完美融合,通过运用色彩、木饰面、灯光和软装的巧妙搭配,构建出不同的空间区域,输出美感和艺术,让观者在质感和虚实之间引发共鸣,最终形成沉浸式体验。很好地解决了产品、场景、艺术与生活的共存关系,使人们能够感受到真正的舒适和放松,给人留下深刻印象。
(图文来源:广东沃格家居公众号,侵删)
想了解这个项目,请联系我!
我想加盟,请将项目的资料发给我。
请问我所在地区有加盟商了吗?
想了解此项目的加盟流程,请联系我!
请问加盟此项目需投资多少钱?
版权与免责声明:
凡未注明稿件来源的内容均为转稿或由企业用户注册发布,本网转载出于传递更多信息的目的,如转稿涉及版权问题,请作者联系我们处理。我们对页面中展示内容的真实性、准确性和合法性均不承担任何法律责任。
如内容信息对您产生影响,请及时联系我们修改或删除。
15811192007
今天已经有 230 人获取加盟资料
激发新活力,释放新动能,大咖齐聚,闪耀门展-2023中国国际门业展览会(北京门展),中国木门网、中居联高端访谈栏目专访鑫雅迪负离子木门营销总监刘志峰。
激发新活力,释放新动能,大咖齐聚,闪耀门展-2023中国国际门业展览会(北京门展),中国木门网、中居联高端访谈栏目专访洋诚智慧木门总经理王智。
激发新活力,释放新动能,大咖齐聚,闪耀门展-2023中国国际门业展览会(北京门展),中国木门网、中居联高端访谈栏目专访戴克爱家高定刘杰。
激发新活力,释放新动能,大咖齐聚,闪耀门展-2023中国国际门业展览会(北京门展),中国木门网、中居联高端访谈栏目专访品桥木门总经理隗治洪
激发新活力,释放新动能,大咖齐聚,闪耀门展-2023中国国际门业展览会(北京门展),中国木门网、中居联高端访谈栏目专访兄弟木门营销总经理鲍壮。
2024门业及定制家居品牌峰会暨中居联杯·2023年度木门及门墙柜整装十大品牌表彰盛典圆满落幕
5月10日,“蝶变·未来 全新智能家居发布会”柏丽嘉全屋智能定制家居经销商会在成都香迪大酒店盛大开启。
让加盟更诚信 让选择更放心
立即咨询做有权威的品牌